Компания Домовой

Заказать звонок

Процесс выполнения наших работ

Установка теплого пола в Мелеузе

У жителя нашего города есть хобби, которое требует теплого помещения в холодное время года. До момента обращения в нашу службу, отапливал помещение дровами. Не удобства в данной ситуации заключалась в том что 2 машины дров уходят на сезон по 5000 руб, а так же они занимают много места.
Выход из этой ситуации ВТП (водяной тёплый пол) за 2300 руб + 3000 электрический котёл на 3 кВт.
Система отопления, тепло носитель химическая жидкость температура замерзания — 30 градусов.
Нагрев происходит за счёт электрического котла на 3 кВт рассчитанный для 30 м2 помещения

Прошли грунтовкой основание пола и залили самонивелирующим полом.

Расход на 61 м2:
— Грунтовка концентрат 3 кг (315 руб)
— сухая смесь 25 кг — 32 шт ( 12 000)
— работа на 9000 руб
Итого:
Работа с материалом вышло на 355 руб м2

Берём работы по реставрации дымоходов

Подымаем дымоход из кирпича чуть выше конька дома, что бы не задувало ветром в сторону котла отопления

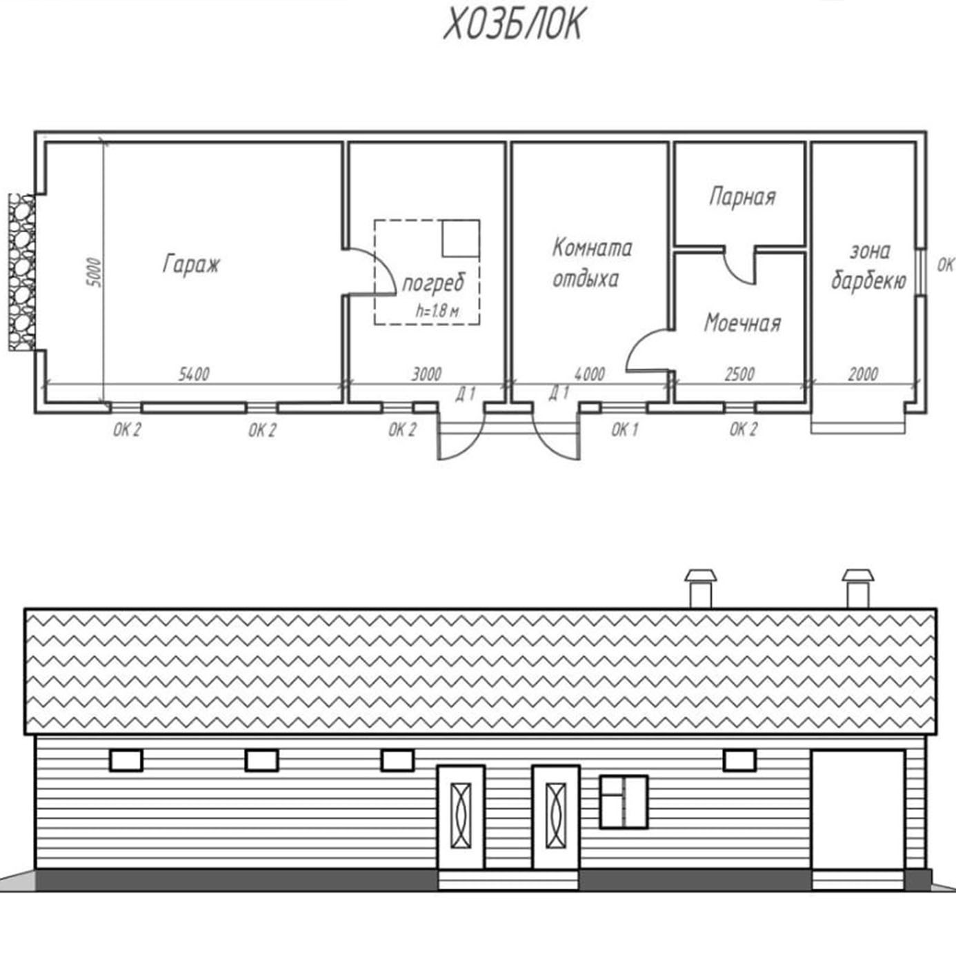
Строительство хоз-блока в Мелеузе

Заказали окна с хорошей скидкой и провели монтаж

Провели ремонт кровли за 6 дней